HVAC Duct Shop Drawing Services
Description
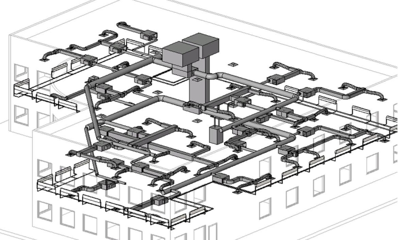
Silicon EC offers HVAC Duct Fabrication Drawing Services at cost-effective prices. We have a team of experienced HVAC Consultants who are the best when it comes to HVAC Designs and Drafting Services. We have successfully completed all small and big HVAC projects with a success ratio of 100%. Contact us and get your next HVAC Duct Fabrication Drawing Services outsourced to us. Get free quotes for the HVAC Services today.Why Choose Us?
-13+ years of Experience
-Successful completion of 11000+ projects
-Team of 180+ skilled engineers and drafters
-2500+ happy clients
-Use of licensed softwares
For more details:
Web: http://www.siliconec.com/shop-drawing-services/hvac-duct-shop-drawing.html
Email: info@siliconec.com
Web page:

